Details
We are pleased to present this beautifully appointed two-bedroom villa, ideally situated just 50 metres from the tranquil shores of Leam Sor Beach on the southern coast of Koh Samui. Located in a serene and private setting, this thoughtfully designed residence offers a harmonious blend of modern comfort and relaxed tropical living making it an excellent choice for a permanent home, a holiday retreat, or a premium rental investment.
Surrounded by swaying palm trees and natural beauty, the villa provides a peaceful sanctuary with the gentle sound of the ocean nearby. The property features a well-conceived open-plan layout, enhancing the sense of space, natural light, and airflow throughout. The bright and spacious living and dining areas are complemented by large sliding glass doors, which open seamlessly onto the outdoor terrace, inviting residents to enjoy a true indoor-outdoor lifestyle.Step outside into your private tropical haven, complete with a sun-drenched swimming pool, a well-maintained garden, and a shaded terrace ideal for both relaxation and entertaining.
Just a one-minute walk from the unspoiled sands of Leam Sor Beach, the villa offers the rare combination of privacy and immediate beach access perfect for early morning walks or tranquil sunset swims. This property is offered fully furnished and move-in ready, featuring air-conditioning in all rooms, private parking, and freehold ownership options. Ideally positioned in a quiet yet easily accessible part of the island, it is only a short drive to local amenities, including restaurants, shops, and popular attractions while still offering a genuine sense of seclusion and escape.
Key Features:
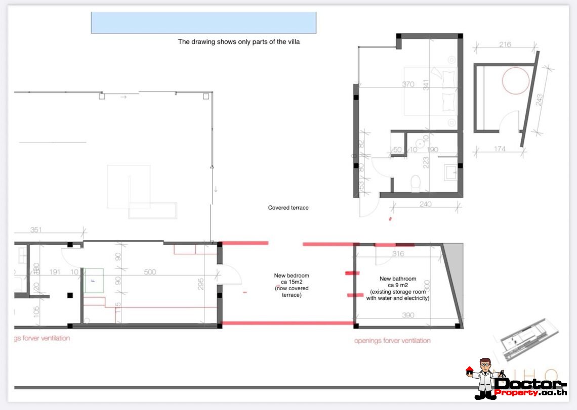
- 2 spacious bedrooms 2 Bathrooms
- 1 Guest Toilet
- Just 50 metres to the beach
- Private saltwater swimming pool (9.5m x 3.5m)
- Government electricity supply
- Government water & Water Tank
- Freehold ownership
- Chanote land title
- Sold with Thai company
Contact us today for information!
2 Bedroom Pool Villa, Villa Near The Beach, Villa for Sale in Koh Samui
Features
Images
Price
| € | 530,000 | |
| THB | 19,500,000 | |
| $ | 628,000 | |
| £ | 459,000 | |
| CN¥ | 4,379,000 | |
| RUB | 47,407,000 | |
| ₪ | 1,968,000 | |
| A$ | 908,000 |
Floor Plan
Contact
Doctor Property Team

Cherry Songkhasupha
Contact us by phone +66 6 1210 0497
or mail info@doctor-property.co.th
Location
Laem Sor














































