Details
Nestled in the tranquil and sought-after Ban Tai area of Koh Samui, this exceptional 3-bedroom pool villa offers the perfect blend of modern luxury and tropical serenity. Surrounded by lush greenery and boasting a private infinity-edge pool, this villa is an idyllic retreat, ideal for both permanent living and holiday escapes.
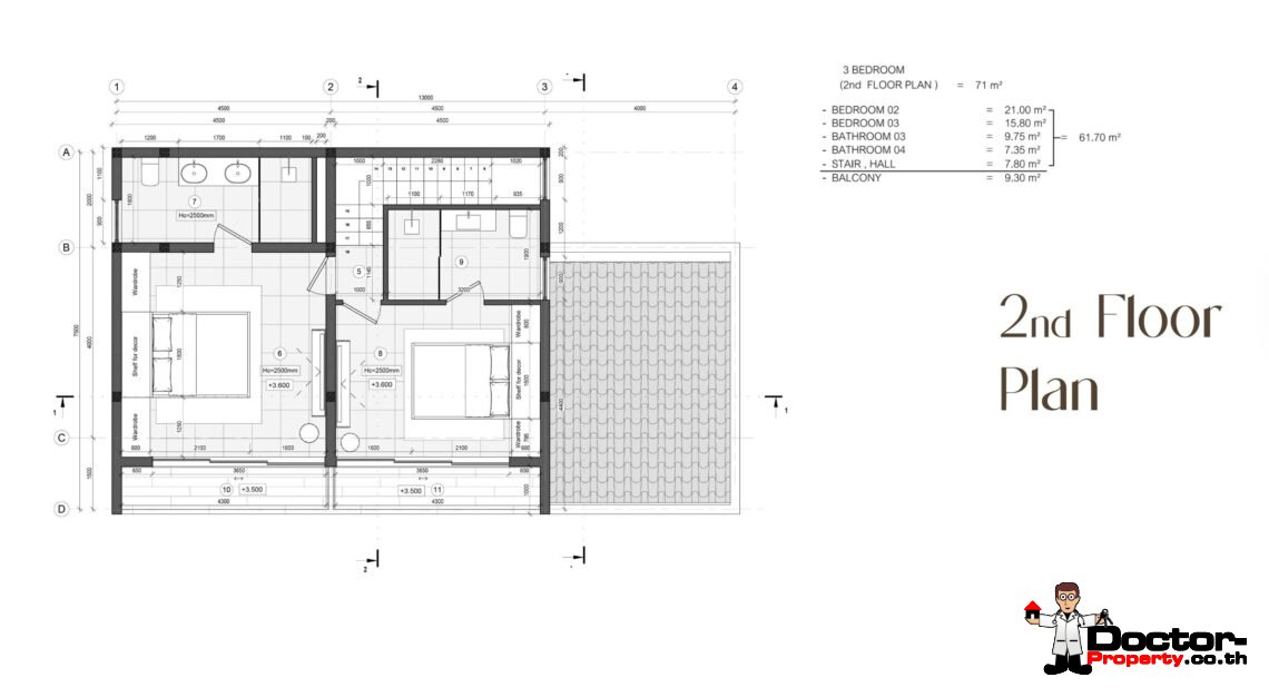
The villa features a contemporary open-plan design, where spacious living areas seamlessly flow into the outdoors, creating an inviting atmosphere for relaxation and entertaining. With three generously sized bedrooms, each with large windows and built-in wardrobes, the villa ensures maximum comfort and privacy for its residents. The master suite is a standout, with its en-suite bathroom, offering a luxurious space to unwind and enjoy the beautiful tropical surroundings.
Step outside to your private oasis, where the infinity pool offers breathtaking views of the surrounding landscape. The outdoor living area is perfect for alfresco dining or simply lounging by the pool, enjoying the warm Samui climate. Whether you’re looking to entertain guests or enjoy a peaceful retreat, the outdoor space provides the ultimate in both comfort and style.
Designed with modern living in mind, this villa is equipped with high-quality finishes and features, including air conditioning throughout, a fully fitted kitchen with premium appliances, and stylish bathrooms with contemporary fixtures. The eco-friendly design integrates sustainable elements, ensuring that the villa maintains both luxury and environmental consciousness.
Located in the peaceful Ban Tai area, this villa offers a quiet, serene setting while being just a short drive from some of Koh Samui’s most popular attractions. Enjoy easy access to pristine beaches, top restaurants, and vibrant nightlife, all while being able to retreat to the calm and privacy of your villa. The Ban Tai area is known for its natural beauty, making it the perfect location for those seeking a balance of tranquillity and convenience.
Key Features:
- 3-bedroom, en-suite sea-view villas
- 2-story, modern beach-house design
- 4 Unit Villa
- Fully furnished to a high standard
- Stylish hardwood features
- Zen-style beach-house design
- Stylish Acacia-wooden features
- Natural, earthy/rustic design style
- Open-plan living & dining area
- Infinity-edge swimming pool
- Balinese turquoise stone tiles
- Large sun-terrace, sun loungers
- Open-air roof-bar terrace area
- Fully fitted Western-style kitchen
- High-quality fittings & appliances
- Air-conditioning & ceiling fans
- Soaking tubs & rain-showers
- Private parking area
Note: The villa is off plan, and construction time is about 9-10 months.
Availability - March 2026. Please contact us to get the latest availability & prices| Villa No. | Bed/Baths | Living (m2) | Plot (m2) | Price (THB) |
|---|---|---|---|---|
| VI1 | 3/4 | 409 | 701.18 | 25,000,000 |
| VI2 | 3/4 | 409 | 689.84 | 25,000,000 |
| VI3 | 3/4 | 409 | 698.25 | 25,000,000 |
| VR4 | 3/4 | 235 | 402 | SOLD! |
| VR5 | 3/4 | 235 | 409.21 | 9,500,000 |
| VR6 | 3/4 | 235 | 409.30 | 9,500,000 |
| VR7 | 3/4 | 235 | 409.22 | 9,500,000 |
Contact us today for more information!
3 Bedroom Pool Villa, Pool Villa in Ban Tai, Real Estate Koh Samui
Features
Images
Price
| € | 252,000 | |
| THB | 9,500,000 | |
| $ | 296,000 | |
| £ | 219,000 | |
| CN¥ | 2,018,000 | |
| RUB | 22,468,000 | |
| ₪ | 885,000 | |
| A$ | 414,000 |
Floor Plan
Contact
Doctor Property Team

Cherry Songkhasupha
Contact us by phone +66 6 1210 0497
or mail info@doctor-property.co.th
Location
Ban Tai






























