Details
Discover the perfect blend of modern luxury and eco-conscious living with this exceptional 3-bedroom pool villa, offering stunning sea views in the exclusive Ban Tai area of Koh Samui. This villa promises a serene and private living experience, making it the ideal home or investment in one of the island’s most sought-after locations.
The villa showcases a distinctive modern, eco-style design, featuring clean lines, natural materials, and energy-efficient elements. The interiors are spacious and open-plan, emphasising seamless indoor-outdoor living. The large floor-to-ceiling windows bathe the villa in natural light and frame panoramic views of the sparkling ocean and the surrounding tropical landscape. The design ethos balances luxury with sustainability, creating a space that is both sophisticated and environmentally responsible.
The villa comprises three generously sized bedrooms, each with its en-suite bathroom, offering the ultimate in comfort and privacy. The master suite is a true retreat, complete with a private terrace and expansive views of the sea view of Koh Phangan. The bathrooms are elegantly designed with high-end fixtures and finishes, creating a spa-like experience for the homeowners. Step outside to your private oasis, where an infinity-edge pool stretches out toward the horizon, allowing you to swim while taking in breathtaking views of the ocean. The spacious pool deck is ideal for sunbathing or enjoying outdoor meals, with ample space for relaxation and entertaining. The villa’s design ensures that every outdoor area makes the most of the incredible sea views and tropical setting.
This villa is part of a boutique development that has garnered significant recognition, winning awards for Best Luxury Villa Development and Best Housing Interior Design. Its location in Ban Tai offers both tranquillity and easy access to Koh Samui’s best attractions, including pristine beaches, world-class restaurants, and vibrant nightlife, all just a short drive away. The project’s low-density design ensures a peaceful environment while maintaining exclusivity and privacy.
Key Features:
- 3-bedroom, en-suite sea-view villas
- 2-story, modern beach-house design
- 3 Unit Villa
- Fully furnished to a high standard
- Stylish hardwood features
- Zen-style beach-house design
- Stylish Acacia-wooden features
- Natural, earthy/rustic design style
- Open-plan living & dining area
- Infinity-edge swimming pool
- Balinese turquoise stone tiles
- Large sun-terrace, sun loungers
- Open-air roof-bar terrace area
- Fully fitted Western-style kitchen
- High-quality fittings & appliances
- Air-conditioning & ceiling fans
- Soaking tubs & rain-showers
- Private parking area
Note: The villa is off plan, and construction time is about 9-10 months.
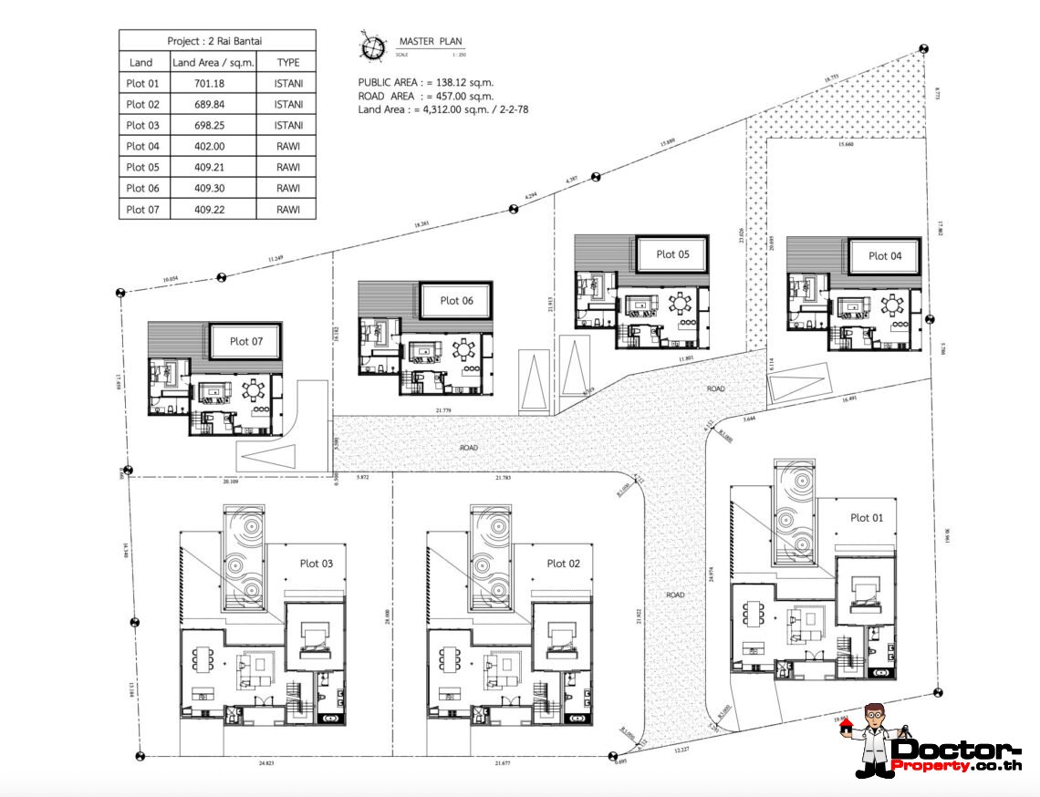
Availability - March 2026. Please contact us to get the latest availability & prices| Villa No. | Bed/Baths | Living (m2) | Plot (m2) | Price (THB) |
|---|---|---|---|---|
| VI1 | 3/4 | 409 | 701.18 | 25,000,000 |
| VI2 | 3/4 | 409 | 689.84 | 25,000,000 |
| VI3 | 3/4 | 409 | 698.25 | 25,000,000 |
| VR4 | 3/4 | 235 | 402 | SOLD! |
| VR5 | 3/4 | 235 | 409.21 | 9,500,000 |
| VR6 | 3/4 | 235 | 409.30 | 9,500,000 |
| VR7 | 3/4 | 235 | 409.22 | 9,500,000 |
For more details or to schedule a viewing, contact us today.
3 Bedroom Sea View Villa, Villa in Ban Tai, Real Estate Koh Samui
Features
Images
Price
| € | 655,000 | |
| THB | 25,000,000 | |
| $ | 760,000 | |
| £ | 569,000 | |
| CN¥ | 5,232,000 | |
| RUB | 63,900,000 | |
| ₪ | 2,362,000 | |
| A$ | 1,080,000 |
Floor Plan
Contact
Doctor Property Team

Cherry Songkhasupha
Contact us by phone +66 6 1210 0497
or mail info@doctor-property.co.th
Location
Ban Tai




































