Details
Located in the sought‑after enclave of Chaweng Noi, this area of Koh Samui is renowned for its tranquil atmosphere, pristine beaches, and elevated sea views. Unlike the bustling centre of Chaweng, Chaweng Noi offers a more refined lifestyle, combining serenity with convenience. The hillside location offers easy access to Koh Samui’s main attractions while being surrounded by lush tropical greenery. Elevated above the coastline, the villas enjoy sweeping sea views and a sense of exclusivity. This prestigious neighbourhood is home to luxury resorts, stylish beach clubs, and fine dining venues, making Chaweng Noi one of the island’s most desirable addresses. Residents benefit from both privacy and convenience, with a lifestyle that blends tropical serenity and modern sophistication.
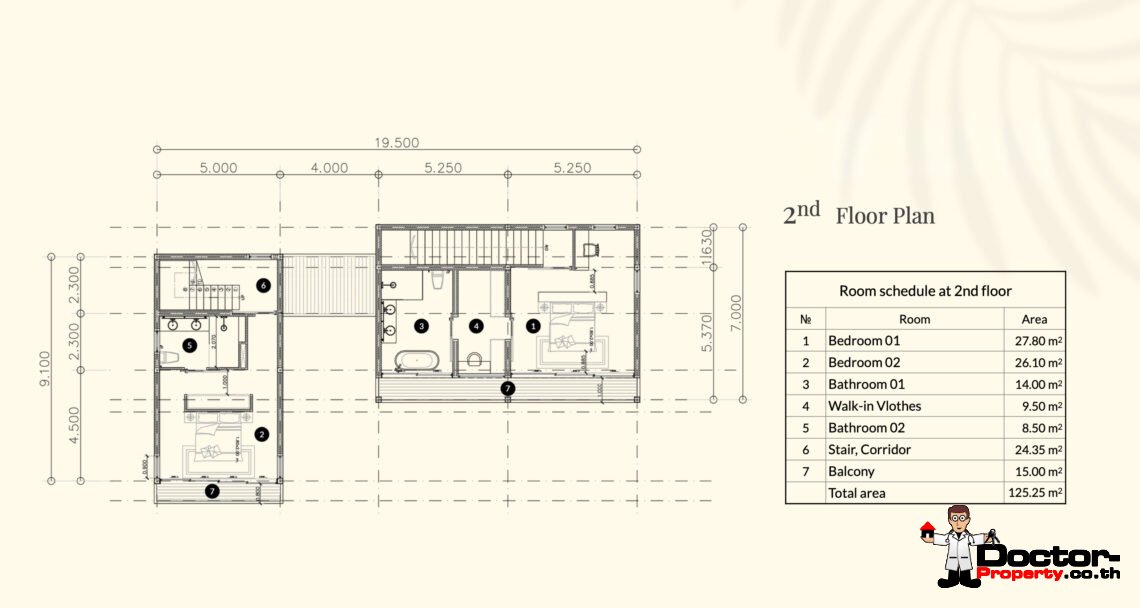
This exclusive project comprises 5 luxury villas, each thoughtfully designed across 2 storeys to maximise space, comfort, and views. Every villa features 3 bedrooms and 3.5 bathrooms, blending Balinese and tropical influences with modern architecture. The design embraces natural textures, open spaces, and seamless indoor‑outdoor living, creating a calming retreat that reflects the island’s charm. On the 1st floor, the layout includes a spacious living area, dining and kitchen zone, Bathroom 3 and Bathroom 4, Bedroom 3, stair and corridor access, as well as a generous terrace that flows directly to the private swimming pool. This level is crafted for entertaining and relaxation, with open‑plan interiors merging effortlessly with outdoor spaces. The 2nd floor is dedicated to private living, offering Bedroom 1 and Bedroom 2, Bathroom 1, a walk‑in clothes area, Bathroom 2, stair and corridor access, and a balcony that frames sweeping sea views. Each bedroom is designed to balance privacy with connection to the villa’s tropical ambience.
Convenience is at the heart of this location. The property is situated just 5 minutes’ drive to Chaweng Beach, where vibrant nightlife, shopping, and dining await. Samui International Airport is only a 10‑minute drive, ensuring effortless travel connections. For a taste of island heritage, the charming Fisherman’s Village in Bophut is approximately 15 minutes away, offering a blend of traditional architecture, seaside restaurants, and lively markets. This villa is not only a luxurious residence but also a prime investment opportunity in one of Koh Samui’s most prestigious neighbourhoods.
Key Features:
- 3 bedrooms with en-suite bathrooms
- 2 storey modern design
- Fully furnished
- Stylish wooden features
- Open-plan living and dining area
- Infinity-edge swimming pool
- Balinese stone titles
- Fully equipped Western-style kitchen
- High-quality fitting and appliances
- Air-conditioning
- Soaking tub and rain-showers
- Private deep well water supply
- Electricity supply by the government
- Freehold ownership via a Thai Company
- Chanote title deed
| Villa No. | Beds/Bath | Land (m2) | Build (m2) | Price (THB) |
|---|---|---|---|---|
| V.1 | 3/3.5 | 572.75 | 402 | 19,000,000 |
| V.2 | 3/3.5 | 685.70 | 402 | 19,000,000 |
| V.3 | 3/3.5 | 695.10 | 402 | 20,000,000 |
| V.4 | 3/3.5 | 884.17 | 390 | 21,000,000 |
| V.5 | 3/3.5 | 543.75 | 402 | 20,000,000 |
Contact us today for more information!
3 Bedroom Pool Villa in Chaweng Noi, Sea View Villa in Chaweng Noi, Property in Koh Samui for Sale
Features
Images
Price
| € | 516,000 | |
| THB | 19,000,000 | |
| $ | 601,000 | |
| £ | 446,000 | |
| CN¥ | 4,153,000 | |
| RUB | 47,250,000 | |
| ₪ | 1,853,000 | |
| A$ | 845,000 |
Floor Plan
Contact
Doctor Property Team

Cherry Songkhasupha
Contact us by phone +66 6 1210 0497
or mail info@doctor-property.co.th
Location
Chaweng Noi






























































