Details
Plai Laem, located on the north-eastern tip of Koh Samui, is one of the island’s most desirable addresses, renowned for its tranquil atmosphere, pristine beaches, and proximity to key lifestyle amenities. With Koh Samui continuing to attract international visitors and long-term residents alike, investment in Plai Laem offers not only a luxurious lifestyle but also strong capital appreciation and consistent rental demand, making it a premier choice for those seeking high-value returns.
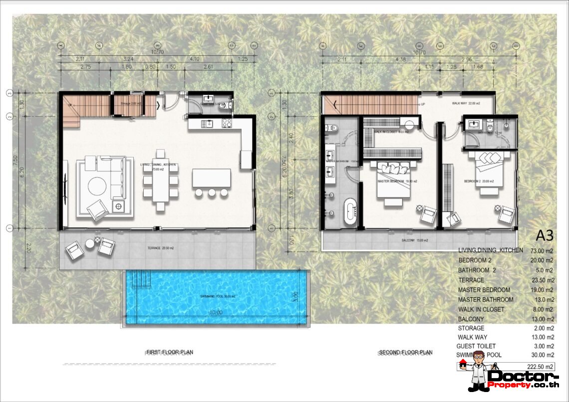
This exceptional villa embodies contemporary elegance across two spacious storeys, designed to maximise natural light and panoramic sea views. Comprising 4 generously sized bedrooms and en-suite bathroom with 1 guest toilet, the property offers refined comfort for both family living and holiday accommodation. The open-plan living and dining areas flow seamlessly onto expansive terraces, creating a perfect balance between indoor and outdoor living. A private swimming pool measuring 10 metres by 3 metres forms the centrepiece of the residence, ideal for relaxation or entertaining. With three plots available, each villa has been meticulously crafted to deliver a blend of modern architecture and tropical charm.
The villa enjoys an enviable position in Plai Laem, one of Koh Samui’s most prestigious neighbourhoods, combining tranquillity with convenience. Just 5 minutes’ drive away lies Plai Laem Beach, celebrated for its soft sands and calm waters, ideal for relaxation and leisure. Within minutes, can reach Fisherman’s Village with its boutique shops and fine dining, or the vibrant Chaweng district for nightlife and entertainment. Koh Samui International Airport is also close by, ensuring effortless travel for international visitors.
Availability - December 2025. Please contact us to get the latest availability & prices| Villa No. | Beds/Bath | Land (m2) | Size (m2) | Price Ex. Fur (THB) |
|---|---|---|---|---|
| A2 | 4/4.5 | 417.20 | 359 | 26,000,000 |
| A3 | 4/4.5 | 464.40 | 416 | 28,000,000 |
| A4 | 4/4.5 | 510.40 | 452 | 29,000,000 |
Contact us today for more information!
Luxury 4 Bedroom Villa in Plai Laem, Pool Villa in Koh Samui, Property in Thailand
Features
Images
Price
| € | 711,000 | |
| THB | 26,000,000 | |
| $ | 828,000 | |
| £ | 615,000 | |
| CN¥ | 5,775,000 | |
| RUB | 64,862,000 | |
| ₪ | 2,605,000 | |
| A$ | 1,235,000 |
Floor Plan
Contact
Doctor Property Team

Cherry Songkhasupha
Contact us by phone +66 6 1210 0497
or mail info@doctor-property.co.th
Location
Plai Laem

Nearby Locations
Customer Reviews
Properties from the same project







































