Details
This new villa is situated in Bang Por, offering stunning views of the surrounding mountains. Bang Por is located in the northwest of Koh Samui, renowned for its excellent seafood restaurants and the prestigious, tranquil Bang Por Beach. The villa is positioned in a prime location, just 500 metres from the beach.
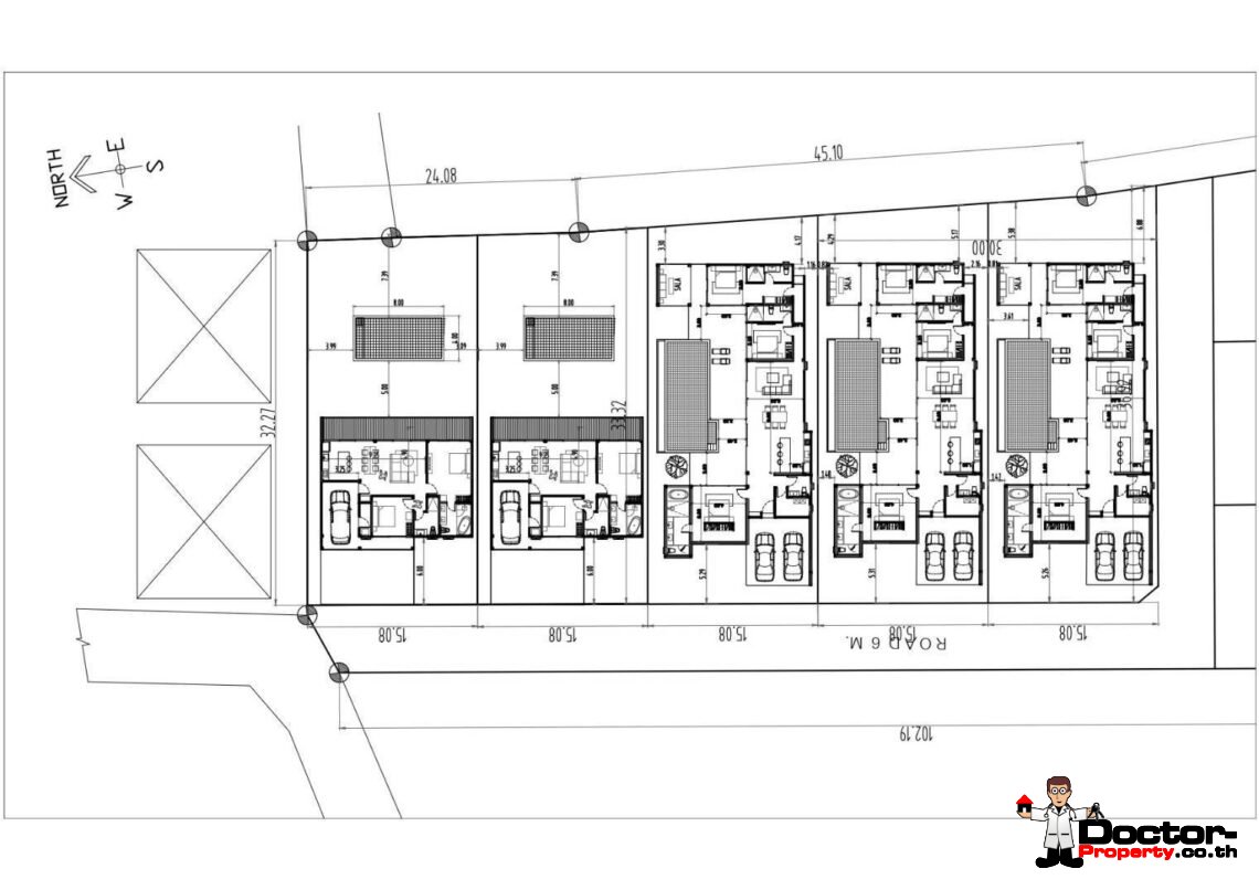
The villa is thoughtfully designed, offering a modern living space of 110 square metres on a plot of 340 square metres. The kitchen is equipped with a European-style design, complete with a refrigerator. The open-plan living area is air-conditioned and features two bedrooms. The master bedroom has been carefully designed with direct access to the swimming pool. The pool size is 7m*3m. The second bedroom is accompanied by a separate bathroom, making it ideal for guests or family members.
Conveniently located with easy access, the villa is only a three-minute drive from Bang Por Beach. A 10 to 15-minute drive will take you to the northeast, where you can visit the charming Fisherman’s Village in Bo Phut. Samui International Airport is a 20 to 25-minute drive away, while Nathon Town, home to the government centre and Nathon Pier, is just a 15-minute drive northwest.
Contact us today for more information!
2 Bedroom Pool Villa, Pool Villa in Bang Por, Real Estate in Koh Samui
Features
Images
Price
| € | 243,000 | |
| THB | 8,900,000 | |
| $ | 286,000 | |
| £ | 212,000 | |
| CN¥ | 1,991,000 | |
| RUB | 21,699,000 | |
| ₪ | 894,000 | |
| A$ | 417,000 |
Floor Plan
Contact
Doctor Property Team

Cherry Songkhasupha
Contact us by phone +66 6 1210 0497
or mail info@doctor-property.co.th
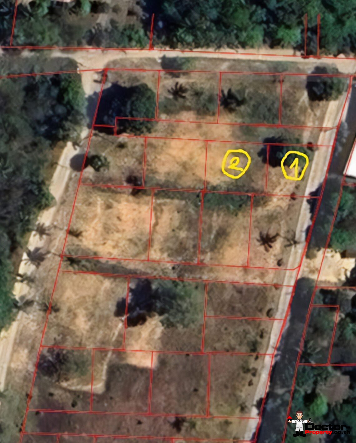
Location
Bang Por









































