Details
Doctor-Property is proud to offer our clients another chance to acquire a villa in a popular and successful project on Koh Samui’s northern coast. Back to market is this resale 3-bedroom villa, still under construction. While the finishing specifications provided in the villa are of exceptional quality, you may still customise the final product to meet your specific requirements. The living room and bedrooms are equipped with air-conditioning for your comfort. The villa has a fully fitted western kitchen with an oven, stove, and hood. Additionally, there are personalised furniture packages tailored to your taste and budget.
Kitchen: The kitchen has cabinets and shelves, an electric oven, stove, hood, faucet mixer, sink, and a QUARTZ worktop.
Bathroom: The bathroom includes a water closet, shower, hand spray, towel bar, paper holder, mirror, and floor and wall ceramic tiles. The shower area features tempered safety glass.
Miscellaneous: The villa features an infinity edge saltwater system swimming pool measuring 12×3.5 m. LED lights and a ceramic tile pool deck and terrace accompany the pool. A ceiling fan is installed in the Sala for added comfort. LED spotlights provide all lighting in the villa. An underground water tank is available for water storage. The villa has a fibreglass septic tank, seepage ponds, and a grease trap. A Stiebel hot and cold water system is installed, and each room is equipped with inverter-type air conditioning. Internet LAN points are available throughout the villa. The floor finishing consists of ceramic tiles, and all internal doors are made from prepared and treated hardwood. The windows and sliding door frames are powder-coated aluminium with 10mm clear glass.
This villa boasts a unique design that sets it apart from others on the island. The interiors provide a private, spacious, and versatile living experience, with separate areas for the living room, kitchen, bathrooms, bedrooms, and outdoor spaces. The villa features an expansive open-plan living area with floor-to-ceiling windows, allowing abundant natural light and warmth. The kitchen and dining space seamlessly connect to the living room, which leads directly to the pool deck and terrace, offering breathtaking sea views.
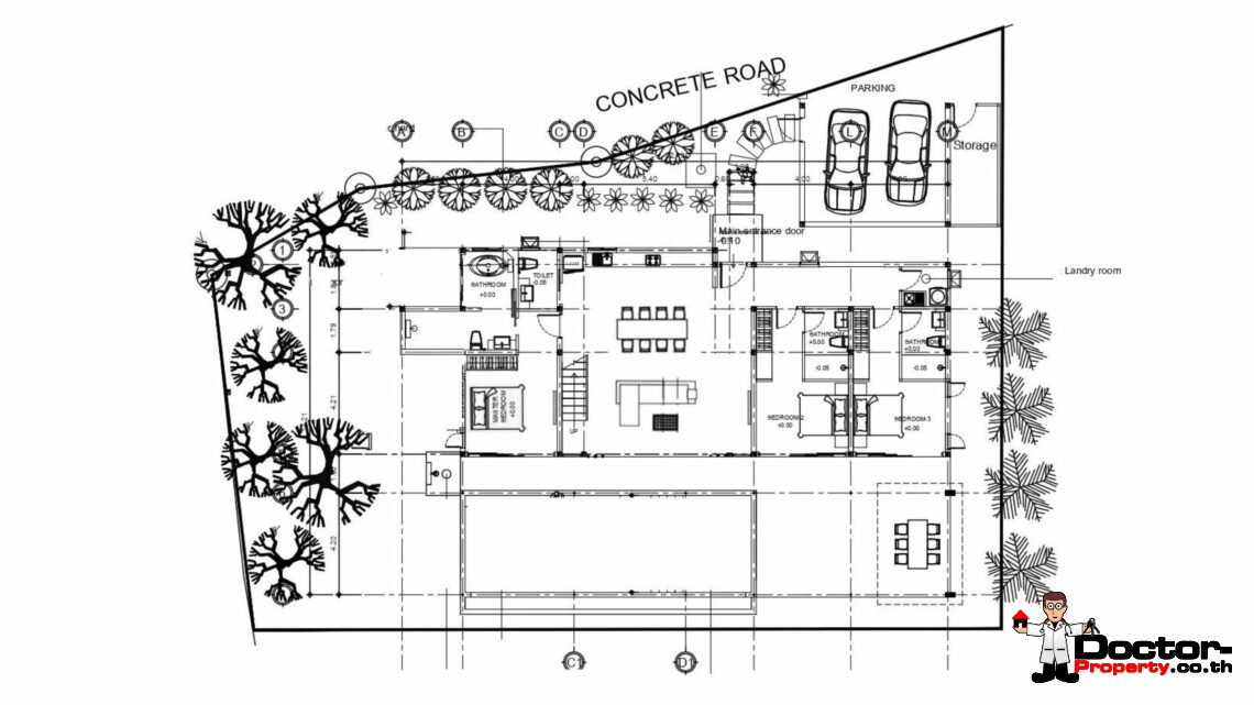
Interior: 180 sqm Terrace: 75 sqm Swimming Pool: 48 sqm Garage: 30 sqm Technical room: 20 m2 TOTAL USAGE AREA: 353 sqm
PAYMENT TERMS:
- 60% upon signing the agreement: 11,640,000 THB
- 15% when all ceilings are completed: 2,910,000 THB
- 10% when all floor and wall tiles are completed: 1,940,000 THB
- 10% upon the installation of windows and doors: 1,940,000 THB
- 5% upon handover: 970,000 THB
TRANSFER FEES: 50/50 LEASEHOLD: 1.1% FREEHOLD: 6.3%
10 YEARS RENTAL PROGRAM: Optional 10 YEARS RENTAL PROGRAM is designed for owners and investors who wish to maximize their rental returns while not occupying the property. During the 10-year property management period, the total room revenue will be divided on a 60/40 basis, with 60% paid to the owner and the operator retaining 40%. This profit-sharing structure improves upon the 50/50 model used in other projects, providing transparency on operation costs and expenses. The operator’s share will cover all operating expenses, including utilities, marketing, salaries, cleaning equipment, and other necessary expenses for efficient and proper rental program operation.
The rental program also includes check-in/out services, maintenance, upkeep, cleaning, and management, all handled by the developer team. Owner Occupancy Duration: 10 years with the option to extend for another period
Included Services: Maintenance & Repairs, Electricity & Water Cleaning & Upkeep, Check-in & Check-out. Profit Share: 60/40 split.
Call us now for more!
Koh Samui Property Investment, Thailand Real Estate
Features
Videos
Images
Price
| € | -0 | |
| THB | - 0 | |
| $ | -0 | |
| £ | -0 | |
| CN¥ | -0 | |
| RUB | - 0 | |
| ₪ | -0 | |
| A$ | -0 |
Additional costs
| Rental management: | €1,200 THB 42,000 $1,300 £1,000 CN¥9,400 RUB 104,500 ₪4,200 A$2,000 per year |
Floor Plan
Contact
Doctor Property Team

Cherry Songkhasupha
Contact us by phone +66 6 1210 0497
or mail info@doctor-property.co.th
Location
Bang Por


























