Details
Discover to 4-bedroom private Pool Villa nestled in Lamai, Koh Samui’s serene south coast. Offering the perfect blend of tranquility and luxury, this meticulously designed villa presents a prime opportunity for both investment and perfect lifestyle.
Boasting spacious interiors seamlessly integrated with outdoor living spaces, the villa embodies modern tropical living at its finest. Each bedroom is a sanctuary of comfort, complemented by en-suite bathrooms. The living area features an open-plan layout. Outside, the highlight awaits a private pool surrounded by lush greenery. With a sense of luxury and tranquility, this villa offers flexible ownership options, including freehold and leasehold, catering to both investment and personal living.
Located in Lamai, one of Koh Samui’s most sought-after destinations, the villa enjoys proximity to pristine beaches, vibrant local markets, and a diverse range of dining and entertainment options. The area’s accessibility to amenities and natural beauty makes it an ideal choice for those seeking a blend of convenience and serenity.
Key Features:
- 4 bedrooms 4 Bathroom
- Off-Plan Villa
- Optional Furniture Package
- Private Swimming Pool
- Private Parking
- Western Kitchen
- Electricity by the government
- Deep Well Water
- Freehold and Leasehold
- Chanote
Details:
- Plot 1-4, 4 Bedroom, Price is THB 12,900,000
- Plot 5-9, 3 Bedroom, Price is THB 10,400,000
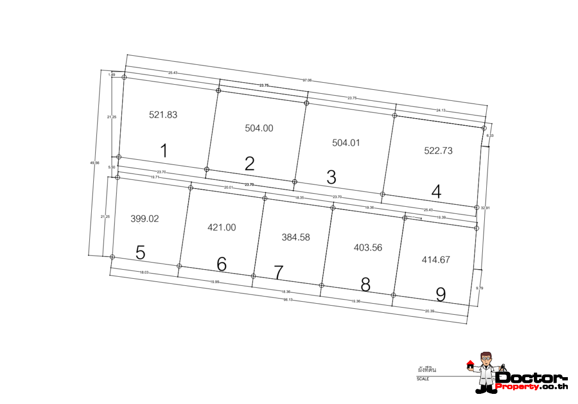
| Villa No. | Land (m2) | Build (m2) | Price (Freehold) | Price (Leasehold) |
|---|---|---|---|---|
| 1 | 521.83 | 199.01 | SOLD! | SOLD! |
| 2 | 504 | 199.01 | SOLD! | SOLD! |
| 3 | 504 | 277.84 | 12.9M | 10.4M |
| 4 | 522.73 | 277.84 | 12.9M | 10.4M |
| 5 | 399.02 | 180.99 | SOLD! | SOLD! |
| 6 | 421 | 180.99 | SOLD! | SOLD! |
| 7 | 384.58 | 180.99 | SOLD! | SOLD! |
| 8 | 403.56 | 180.99 | SOLD! | SOLD! |
| 9 | 414.67 | 180.99 | SOLD! | SOLD! |
Note: Villa No. 1-4, Land Lease Price is THB 75K per/year, Villa No. 5-9, Land Lease Price is THB 60K per/year. The furniture package price is THB 500K. Community fee: ฿5,500 Per/Month.
Contact us today for more information!
3 Bedroom Villa for Sale, Villa in Lamai, Property in Koh Samui
Features
Images
Price
| € | 348,000 | |
| THB | 12,900,000 | |
| $ | 405,000 | |
| £ | 303,000 | |
| CN¥ | 2,861,000 | |
| RUB | 31,083,000 | |
| ₪ | 1,310,000 | |
| A$ | 609,000 |
Additional costs
| Community fee: ฿5,500 Per/Month is Included cleaning & maintenance (cleaning the road and cutting the grass), weekly garbage collection and weekly swimming pool maintenance. |
Floor Plan
Contact
Doctor Property Team

Cherry Songkhasupha
Contact us by phone +66 6 1210 0497
or mail info@doctor-property.co.th
Location
Lamai









































