Beschreibung
An der ruhigen Nordküste von Koh Samui gelegen, bietet Bang Por die perfekte Mischung aus Ruhe und Erreichbarkeit. Bekannt für seine unberührten Strände, das ruhige, türkisfarbene Wasser und die entspannte Atmosphäre, hat es sich zu einem der begehrtesten Wohngebiete der Insel entwickelt. Mit seiner natürlichen Schönheit, der wachsenden Infrastruktur und dem hohen Vermietungspotenzial bietet Bang Por sowohl Lifestyle-Käufern als auch Investoren, die auf langfristigen Wertzuwachs Wert legen, eine hervorragende Gelegenheit.
Villen Typ B und Typ C (jeweils 2 Schlafzimmer): Diese wunderschön gestalteten, modernen Villen im Bohème-Stil sind ideal für Paare, kleine Familien oder als Feriendomizil. Typ B: 209,50 m², Typ C: 232 m². Die Villen verfügen über zwei geräumige Schlafzimmer, die jeweils mit modernen Oberflächen und natürlichen Farbtönen gestaltet sind und so eine warme und einladende Atmosphäre schaffen. Das Anwesen umfasst den kompletten Bau und die Fertigstellung, sorgfältig ausgewählte Möbel und Dekorationsmaterialien, einen privaten 3 x 8 Meter großen Swimmingpool, einen angelegten Garten, ein sicheres Eingangstor, eine Garage und eine Umzäunung. Die notwendige Infrastruktur wie Strom- und Wasserversorgung ist bereits vorhanden und garantiert ein komfortables Wohnerlebnis.
Ein weiterer Pluspunkt dieser Immobilie ist die günstige Lage. Die Villa liegt nur drei Minuten vom Bang Por Beach entfernt, dessen feiner Sand und ruhiges Wasser die perfekte Kulisse zum Entspannen bieten. In kurzer Fahrzeit erreichen die Bewohner das Fischerdorf Bophut, das pulsierende Nachtleben von Chaweng und den internationalen Flughafen Koh Samui.
Zusätzliche Kosten für die flexiblen Eigentumsoptionen Typ B 18 und B19:
- Grundstückskauf: 3.000.000 THB
- Grundstückserwerb: 10.000 THB pro Monat
- Gemeinschaftsgebühr: 2.000 THB pro Monat
Zusätzliche Kosten für die flexiblen Eigentumsoptionen Typ C 5 und C7:
- Grundstückskauf: 2.500.000 THB
- Grundstückserwerb: 8.000 THB pro Monat
- Gemeinschaftsgebühr: 2.000 THB pro Monat
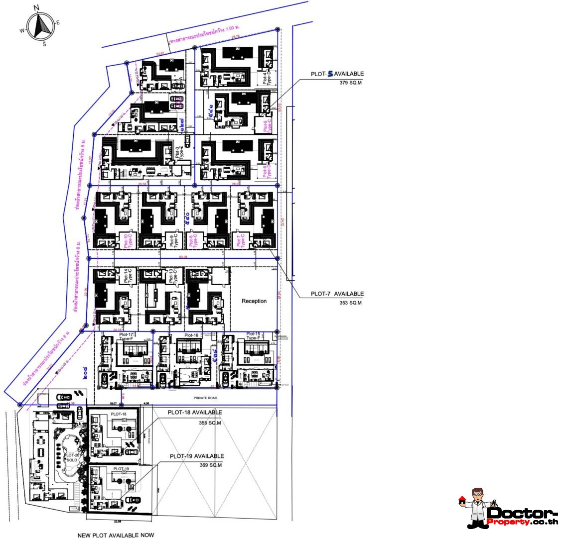
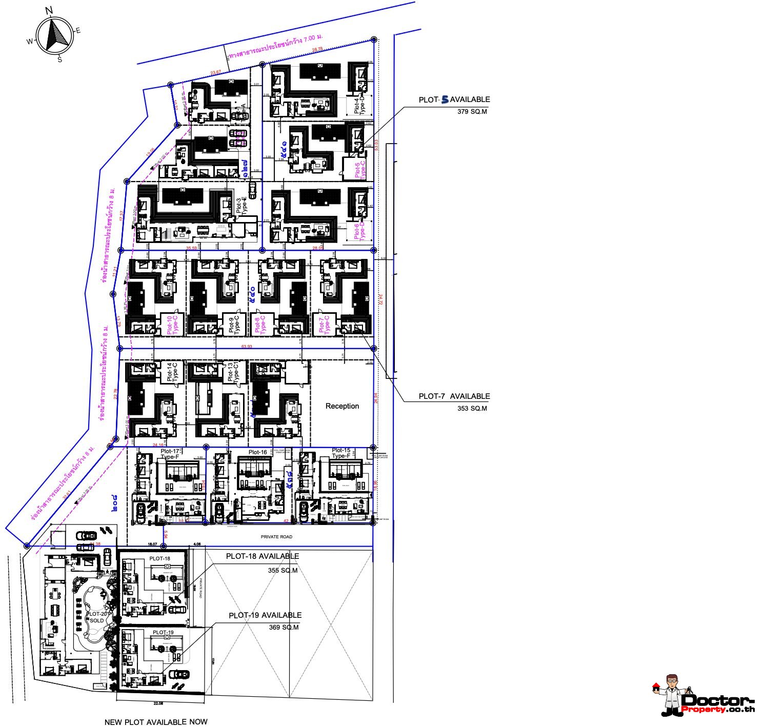
| Villa No. | Beds/Bath | Land (m2) | Build (m2) | Price (THB) Ex. Land |
|---|---|---|---|---|
| A1 | 1/1 | 208 | 143 | SOLD! |
| B2 | 2/2 | 318 | 183 | SOLD! |
| B18 | 2/2 | 355 | 209.50 | 6,500,000 |
| B19 | 2/2 | 369 | 209.50 | 6,500,000 |
| E3 | 4/4 | 596 | 506 | SOLD! |
| D4 | 3/3 | 475 | 308 | SOLD! |
| D5 | 3/3 | 419 | 308 | SOLD! |
| D6 | 3/3 | 480 | 308 | SOLD! |
| C5 | 2/2 | 379 | 232 | 7,500,000 |
| C7 | 2/2 | 353 | 232 | 7,500,000 |
| C8 | 2/2 | 347 | 232 | SOLD! |
| C9 | 2/2 | 331 | 232 | SOLD! |
| C10 | 2/2 | 355 | 232 | SOLD! |
| C11 | 2/2 | 353 | 232 | SOLD! |
| C12 | 2/2 | 351 | 232 | SOLD! |
| C13 | 2/2 | 349 | 232 | SOLD! |
| C14 | 2/2 | 331 | 232 | SOLD! |
Kontaktieren Sie uns noch heute für weitere Informationen!
1-2 Schlafzimmer im Boho-Stil, Poolvilla in Koh Samui, Immobilie zum Verkauf in Thailand
Eigenschaften
Bilder
Preis
| € | 199.000 | |
| ฿ | 7.500.000 | |
| $ | 234.000 | |
| £ | 173.000 | |
| CN¥ | 1.599.000 | |
| RUB | 17.831.000 | |
| ₪ | 711.000 | |
| AU$ | 330.000 |
Grundriss
Kontakt
Doctor Property Team

Cherry Songkhasupha
Contact us by phone +66 6 1210 0497
or mail info@doctor-property.co.th
Ort
Bang Por

Umgebung
Kundenmeinungen
Weitere Angebote aus dem gleichen Projekt




































