Détails
Située dans le quartier très prisé de Chaweng Noi, cette zone de Koh Samui est réputée pour son atmosphère paisible, ses plages immaculées et ses vues imprenables sur la mer. Contrairement au centre animé de Chaweng, Chaweng Noi offre un style de vie plus raffiné, alliant sérénité et commodités. Nichées à flanc de colline, les villas permettent d’accéder facilement aux principales attractions de Koh Samui, tout en étant entourées d’une végétation tropicale luxuriante. Surplombant le littoral, elles bénéficient de vues panoramiques sur la mer et d’une atmosphère exclusive. Ce quartier prestigieux abrite des complexes hôteliers de luxe, des clubs de plage élégants et des restaurants gastronomiques, faisant de Chaweng Noi l’une des adresses les plus recherchées de l’île. Les résidents profitent d’une intimité totale et d’un confort optimal, pour un style de vie qui mêle sérénité tropicale et sophistication moderne.
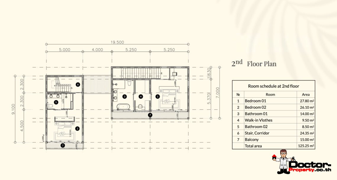
Ce projet exclusif comprend 5 villas de luxe, chacune conçue avec soin sur deux niveaux afin d’optimiser l’espace, le confort et les vues. Chaque villa dispose de 3 chambres et de 3 salles de bains et demie, et allie influences balinaises et tropicales à une architecture contemporaine. Le design privilégie les textures naturelles, les espaces ouverts et une transition fluide entre intérieur et extérieur, créant un havre de paix qui reflète le charme de l’île. Au premier étage, l’agencement comprend un vaste séjour, un espace salle à manger et cuisine, les salles de bains 3 et 4, la chambre 3, un accès par escalier et couloir, ainsi qu’une grande terrasse donnant directement sur la piscine privée. Ce niveau est conçu pour recevoir et se détendre, avec des intérieurs décloisonnés se fondant harmonieusement avec les espaces extérieurs. Le deuxième étage est dédié à l’intimité et comprend les chambres 1 et 2, la salle de bains 1, un dressing, la salle de bains 2, un accès par escalier et couloir, et un balcon offrant une vue imprenable sur la mer. Chaque chambre est conçue pour allier intimité et connexion à l’ambiance tropicale de la villa.
L’emplacement est idéal. La propriété se situe à seulement 5 minutes en voiture de la plage de Chaweng, où vous attendent une vie nocturne animée, des boutiques et des restaurants. L’aéroport international de Samui est à seulement 10 minutes en voiture, garantissant des correspondances faciles. Pour une immersion dans le patrimoine insulaire, le charmant village de pêcheurs de Bophut se trouve à environ 15 minutes et offre un mélange d’architecture traditionnelle, de restaurants en bord de mer et de marchés animés. Cette villa représente non seulement une résidence luxueuse, mais aussi une excellente opportunité d’investissement dans l’un des quartiers les plus prestigieux de Koh Samui.
Caractéristiques principales :
- 3 chambres avec salles de bains privatives
- Maison moderne sur 2 étages
- Entièrement meublée
- Élégants éléments en bois
- Espace de vie et salle à manger ouverts
- Piscine à débordement
- Parquet en pierre balinaise
- Cuisine entièrement équipée de style occidental
- Finitions et électroménager haut de gamme
- Climatisation
- Baignoire et douches à effet pluie
- Alimentation en eau par puits privé
- Fourniture d’électricité par le gouvernement
- Propriété en pleine propriété via une société thaïlandaise
- Titre de propriété Chanote
| Villa No. | Beds/Bath | Land (m2) | Build (m2) | Price (THB) |
|---|---|---|---|---|
| V.1 | 3/3.5 | 572.75 | 402 | 19,000,000 |
| V.2 | 3/3.5 | 685.70 | 402 | 19,000,000 |
| V.3 | 3/3.5 | 695.10 | 402 | 20,000,000 |
| V.4 | 3/3.5 | 884.17 | 390 | 21,000,000 |
| V.5 | 3/3.5 | 543.75 | 402 | 20,000,000 |
Contactez-nous dès aujourd’hui pour plus d’informations !
3 Villa avec piscine et chambre à Chaweng Noi, Villa avec vue sur mer à Chaweng Noi, Propriété à vendre à Koh Samui
Traits
Images
Prix
| € | 515 000 | |
| THB | 19 000 000 | |
| $US | 611 000 | |
| £GB | 447 000 | |
| CNY | 4 250 000 | |
| RUB | 46 769 000 | |
| ₪ | 1 906 000 | |
| $AU | 884 000 |
Plan d’étage
Contact
Doctor Property Team

Cherry Songkhasupha
Contact us by phone +66 6 1210 0497
or mail info@doctor-property.co.th
Emplacement
Chaweng Noi




























































