Détails
Ce projet exclusif, composé de six villas tropicales de plain-pied, est situé au cœur de Lamai, l’une des destinations les plus charmantes et prisées de Koh Samui. Chaque villa a été soigneusement conçue pour allier architecture contemporaine et beauté naturelle de l’île, offrant ainsi à ses résidents un style de vie élégant et serein. À quelques minutes seulement de la plage de Lamai, des restaurants internationaux, des boutiques et d’une multitude d’activités de loisirs, ce complexe offre un équilibre parfait entre commodités et tranquillité. Grâce à des plans ouverts qui optimisent la lumière naturelle et la circulation de l’air, chaque villa crée une transition harmonieuse entre intérieur et extérieur. Entourées d’une végétation tropicale luxuriante, les villas offrent un havre de paix, tandis que leur conception de plain-pied garantit un confort optimal aux familles, aux retraités ou aux vacanciers en quête de confort et d’accessibilité.
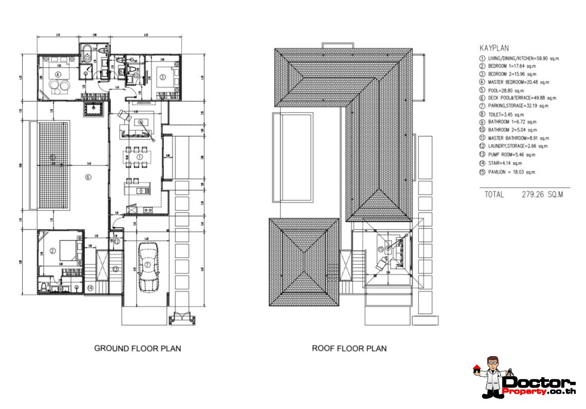
Chaque villa dispose de trois chambres spacieuses, chacune avec sa propre salle de bains, assurant ainsi intimité et confort aux résidents et à leurs invités. La suite parentale s’ouvre directement sur la terrasse de la piscine, permettant de se réveiller face à une vue apaisante sur l’eau et le jardin. Au cœur de la maison, un vaste espace de vie ouvert comprenant salon et salle à manger est idéal pour le quotidien comme pour recevoir. De larges baies vitrées coulissantes prolongent l’intérieur vers l’extérieur, où une piscine privée, une terrasse ensoleillée et un coin salon ombragé invitent à la détente tout au long de la journée.
L’emplacement privilégié du projet à Lamai garantit une excellente desserte de l’île. En quelques minutes de voiture, les résidents peuvent accéder à la plage de Lamai, aux marchés locaux, aux centres de bien-être et à un large choix de restaurants et de divertissements. Les commodités essentielles telles que les supermarchés, les écoles internationales et les hôpitaux sont également à proximité. Pour encore plus de loisirs, le village de pêcheurs de Bophut et le quartier animé de Chaweng sont à moins de 20 minutes, tandis que l’aéroport international de Samui est accessible en moins de 30 minutes. Alliant intimité, design tropical moderne et praticité, ce programme immobilier de 6 villas représente une opportunité rare d’acquérir une propriété d’exception dans l’un des quartiers les plus prisés de Koh Samui.
Availability - December 2025. Please contact us to get the latest availability & prices| Villa No. | Beds/Bath | Land (m2) | Size (m2) | Price (THB) Ex. Fur |
|---|---|---|---|---|
| V.1 | 3/3.5 | 464.20 | 279.26 | SOLD! |
| V.2 | 3/3.5 | 471.75 | 279.26 | SOLD! |
| V.3 | 3/3.5 | 468.20 | 279.26 | SOLD! |
| V.4 | 3/3.5 | 464.70 | 279.26 | SOLD! |
| V.5 | 3/3.5 | 464.30 | 279.26 | 7,500,000 |
| V.6 | 3/3.5 | 507.70 | 279.26 | 7,500,000 |
Remarque : Il s’agit d’un projet sur plan dont le délai d’achèvement estimé est d’environ 10 mois.
Frais supplémentaires :
- Forfait mobilier : 1 200 000 THB
- Frais de gestion sur place : 245 700 THB par an, incluant les réservations, l’entretien du jardin et de la piscine, ainsi que le nettoyage.
- Bail foncier : paiement anticipé tous les 5 ans, loyer majoré de 7 % tous les 5 ans
-
-
- 1 à 5 ans : 95 000 THB par an
- 6 à 10 ans : 101 650 THB par an
- 11 à 15 ans : 108 766 THB par an
- 16 à 20 ans : 116 380 THB par an
- 21 à 25 ans : 124 527 THB par an
- 26 à 30 ans : 133 244 THB par an
-
Contactez-nous dès aujourd’hui pour plus d’informations !
Villa 3 chambres à Lamai, Villa à vendre à Lamai, Propriété à Koh Samui
Traits
Images
Prix
| € | 200 000 | |
| THB | 7 500 000 | |
| $US | 234 000 | |
| £GB | 174 000 | |
| CNY | 1 604 000 | |
| RUB | 18 365 000 | |
| ₪ | 723 000 | |
| $AU | 331 000 |
Plan d’étage
Contact
Doctor Property Team

Cherry Songkhasupha
Contact us by phone +66 6 1210 0497
or mail info@doctor-property.co.th
Emplacement
Lamai

































