Details
This stunning 2-bedroom pool villa, located in the sought-after area of Bo Phut, Koh Samui, offers a perfect blend of comfort, and modern design. Built by a reputable local developer with extensive experience in the Koh Samui real estate market, this villa is an ideal investment or family retreat.The villa features spacious living areas designed for both comfort and functionality, with contemporary finishes throughout that elevate the overall aesthetic.
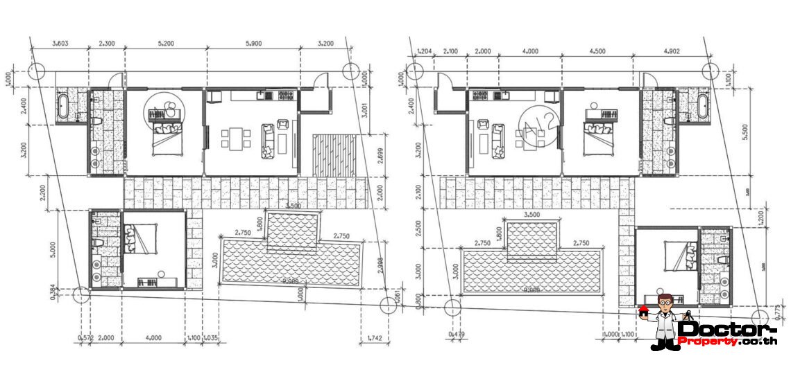
The open-plan design includes a fully equipped kitchen, complete with modern appliances, sleek countertops, and ample storage space. The adjacent open-plan dining area offers a seamless flow into the lounge area, which is thoughtfully arranged for relaxation and social gatherings. Large glass doors open directly to the villa’s private pool, creating a harmonious indoor-outdoor living experience.
Each of the two bedrooms has been carefully designed to maximize privacy and comfort. The rooms are generously sized and large windows that allow natural light to flood the space. Both bedrooms offer direct access to the outdoor area, allowing residents to step outside and enjoy the serene surroundings or take a dip in the private pool providing an elevated level of comfort and privacy.
Located just minutes away from Fisherman’s Village, renowned for its stunning sunsets, bustling market, and authentic dining options, this villa provides a rare opportunity to own a stylish home in one of Koh Samui’s most sought-after locations. With a prime location, modern features, and a well-established reputation of the developer, this property represents a great investment for those looking to capitalize on Koh Samui’s thriving tourism market. The villa’s proximity to top attractions, as well as the increasing demand for high-end vacation rentals in Bo Phut, offers an excellent potential for high occupancy rates and strong rental returns.
Key features:
- 2 Bedroom and 2 Bathroom
- Private Swimming Pool and Outdoor Shower
- Modern kitchen and Living area
- Prime location in Bo Phut, close to beaches, restaurants, and shops
- Secure, peaceful neighbourhood perfect for year-round living or as a vacation home
Note: The community fee is ฿4,000 per month: Community maintenance and garbage collection, not included Swimming Pool and garden maintenance.
Contact us today for more information or to schedule a viewing.
2 Bedroom Pool Villa, Villa in Bo Phut, Koh Samui Real Estate, Thailand Property
Features
Images
Price
| € | 224,000 | |
| THB | 8,500,000 | |
| $ | 261,000 | |
| £ | 195,000 | |
| CN¥ | 1,770,000 | |
| RUB | 19,110,000 | |
| ₪ | 759,000 | |
| A$ | 364,000 |
Floor Plan
Contact
Doctor Property Team

Cherry Songkhasupha
Contact us by phone +66 6 1210 0497
or mail info@doctor-property.co.th
Location
Bo Phut

Nearby Locations
Customer Reviews
Properties from the same project




























