รายละเอียด
บางปอตั้งอยู่ริมชายฝั่งทางตอนเหนือของเกาะสมุยอันเงียบสงบ ผสมผสานความเงียบสงบและความสะดวกสบายอย่างลงตัว ด้วยชายหาดอันบริสุทธิ์ น้ำทะเลสีฟ้าครามสดใส และเสน่ห์แห่งการพักผ่อนอันผ่อนคลาย ทำให้ที่นี่กลายเป็นหนึ่งในจุดหมายปลายทางยอดนิยมสำหรับผู้ที่ต้องการอยู่อาศัยมากที่สุดบนเกาะอย่างรวดเร็ว ด้วยการผสมผสานความงามตามธรรมชาติเข้ากับโครงสร้างพื้นฐานที่กำลังขยายตัว และโอกาสในการเช่าที่น่าประทับใจ บางปอจึงเป็นตัวเลือกที่น่าสนใจสำหรับทั้งผู้ที่แสวงหาไลฟ์สไตล์และนักลงทุนที่มองหาความคุ้มค่าที่ยั่งยืน
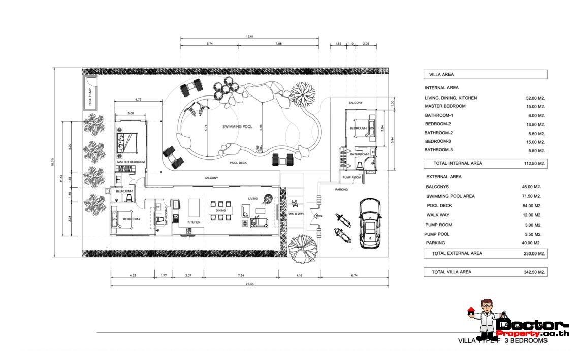
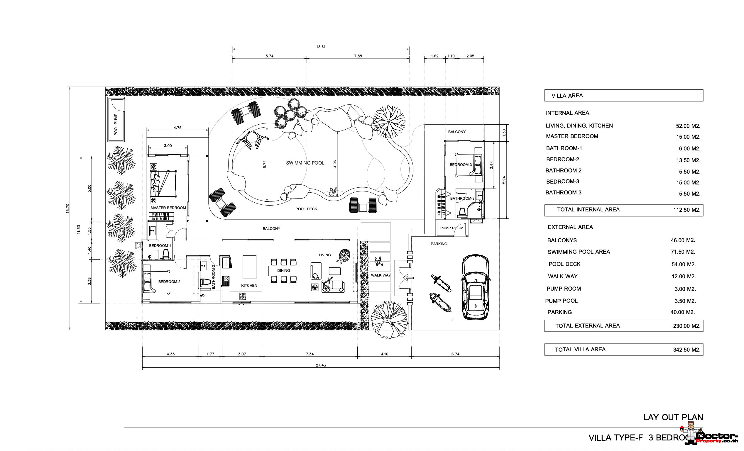
วิลล่าชั้นเดียวสไตล์โบโฮในเฟส 2 ของโครงการ Type F แห่งนี้ ผสมผสานความสะดวกสบายทันสมัยและเสน่ห์แห่งธรรมชาติอย่างลงตัว ด้วยห้องนอนกว้างขวาง 3 ห้อง แต่ละห้องมีห้องน้ำในตัว พื้นที่นั่งเล่นและรับประทานอาหารแบบเปิดโล่งที่เปิดรับแสงธรรมชาติ และห้องครัวพร้อมอุปกรณ์ครบครัน จุดเด่นของที่นี่คือสระว่ายน้ำส่วนตัวทรงโค้งที่ได้รับการออกแบบอย่างมีเอกลักษณ์ ผสานเข้ากับสวนเขตร้อนและระเบียงกลางแจ้งอย่างลงตัว สร้างบรรยากาศที่สมบูรณ์แบบสำหรับการพักผ่อนและสังสรรค์ ด้วยโทนสีเอิร์ธโทน การตกแต่งแบบงานฝีมือ และการจัดวางทั้งภายในและภายนอกที่ลื่นไหล วิลล่าแห่งนี้จึงเปี่ยมไปด้วยกลิ่นอายของความหรูหราแบบสบายๆ และเหมาะสำหรับผู้ที่แสวงหาทั้งสไตล์และความเงียบสงบในการพักผ่อนส่วนตัว
อีกหนึ่งไฮไลท์ของที่พักแห่งนี้คือความสะดวกสบาย วิลล่าตั้งอยู่ห่างจากหาดบางปอเพียงสามนาที หาดทรายนุ่มละมุนและน้ำทะเลสงบสร้างบรรยากาศที่สมบูรณ์แบบสำหรับการพักผ่อน ผู้เข้าพักสามารถเดินทางไปยังหมู่บ้านชาวประมงในบ่อผุด แหล่งบันเทิงยามค่ำคืนที่คึกคักของหาดเฉวง และสนามบินนานาชาติเกาะสมุยได้ภายในระยะเวลาขับรถไม่นาน
ค่าใช้จ่ายเพิ่มเติม:
- ราคาที่ดินแบบกรรมสิทธิ์: 2,750,000 บาท
- ราคาที่ดินแบบเช่า: 6,000 บาท/เดือน
- ค่าส่วนกลาง: 2,000 บาท/เดือน
| Villa No. | Beds/Bath | Land (m2) | Build (m2) | Price (THB) Ex. Land |
|---|---|---|---|---|
| F15 | 3/3 | 565 | 342.50 | 10,900,000 |
| F16 | 3/3 | 560.50 | 342.50 | 10,900,000 |
ติดต่อเราวันนี้เพื่อสอบถามข้อมูลเพิ่มเติม!
พูลวิลล่า 3 ห้องนอน สไตล์โบโฮ บนเกาะสมุย อสังหาริมทรัพย์สำหรับขายในประเทศไทย
จุดเด่น
ภาพ
ราคา
| € | 293,000 | |
| ฿ | 10,900,000 | |
| US$ | 342,000 | |
| £ | 257,000 | |
| CN¥ | 2,420,000 | |
| RUB | 26,247,000 | |
| ₪ | 1,107,000 | |
| AU$ | 515,000 |
แผนชั้น
ติดต่อ
Doctor Property Team

Cherry Songkhasupha
Contact us by phone +66 6 1210 0497
or mail info@doctor-property.co.th
ตำแหน่ง/สถานที่
บางปอ

สถานที่ใกล้เคียง
ความคิดเห็นลูกค้า
Properties from the same project
































