รายละเอียด
วิลล่าทันสมัยแห่งนี้ตั้งอยู่ในสภาพแวดล้อมอันเงียบสงบของอ่างทอง มอบการพักผ่อนที่แสนสงบสุขบนเกาะสมุยอันสวยงาม อ่างทองขึ้นชื่อเรื่องบรรยากาศที่เงียบสงบ ความเขียวขจี และอยู่ใกล้กับเมืองนาทอน ซึ่งเป็นศูนย์กลางการบริหารและการค้าหลักของเกาะ ที่นี่คุณจะพบตลาดท้องถิ่น ร้านค้า ร้านอาหาร และบริการที่จำเป็นต่างๆ ได้อย่างสะดวกสบาย แต่ก็อยู่ห่างพอที่จะรักษาวิถีชีวิตที่สงบและเงียบสงบซึ่งเป็นเอกลักษณ์ของอ่างทอง พื้นที่นี้เหมาะสำหรับผู้ที่ต้องการความสมดุลระหว่างความสะดวกสบายและความเป็นส่วนตัว พร้อมด้วยทิวทัศน์ธรรมชาติที่สวยงามและวิถีชีวิตที่ช้าลงเมื่อเทียบกับแหล่งท่องเที่ยวที่พลุกพล่านของเกาะ
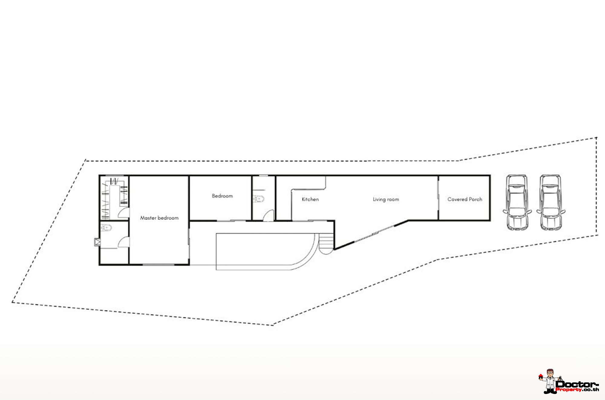
ตัววิลล่าเองมีพื้นที่กว้างขวางถึง 116 ตารางเมตร ตั้งอยู่บนที่ดินขนาด 336 ตารางเมตร ออกแบบด้วยสถาปัตยกรรมสมัยใหม่และเส้นสายที่เรียบง่าย มอบพื้นที่อยู่อาศัยร่วมสมัยที่สามารถปรับแต่งให้เข้ากับสไตล์ส่วนตัวของคุณได้ วิลล่านี้ไม่มีเฟอร์นิเจอร์ ทำให้คุณสามารถสร้างสรรค์การตกแต่งภายในในแบบของคุณเองได้ จุดเด่นของบ้านคือสระว่ายน้ำส่วนตัวขนาด 7 เมตร x 3 เมตร พร้อมระบบคลอรีนเพื่อการดูแลรักษาที่ง่ายดาย การใช้ชีวิตกลางแจ้งเป็นจุดเด่นสำคัญ ด้วยพื้นที่กว้างขวางสำหรับการพักผ่อนและผ่อนคลาย พร้อมชมวิวสวนโดยรอบและน้ำตกใกล้เคียง การผสมผสานระหว่างความสะดวกสบายภายในและความเงียบสงบภายนอก ทำให้วิลล่าแห่งนี้เหมาะอย่างยิ่งสำหรับการอยู่อาศัยถาวรและการพักผ่อนในวันหยุด
การเดินทางสะดวกสบายเป็นอีกหนึ่งข้อดีของที่พักแห่งนี้ วิลล่าตั้งอยู่ห่างจากถนนสายหลักเพียงห้านาที ทำให้เดินทางไปยังส่วนอื่นๆ ของเกาะได้อย่างรวดเร็ว ภายในสิบนาที คุณสามารถไปถึงชายหาดนาธอน ที่ซึ่งคุณสามารถเดินเล่นริมทะเล รับประทานอาหารทะเลสดใหม่ และสัมผัสบรรยากาศที่คึกคักของเมืองได้
คุณสมบัติเด่น:
- 2 ห้องนอนพร้อมห้องน้ำในตัว
- สระว่ายน้ำส่วนตัว (7 x 3 เมตร) พร้อมระบบคลอรีน
- ไม่มีเฟอร์นิเจอร์
- พื้นที่กลางแจ้ง
- ที่จอดรถส่วนตัว (2 คัน)
- กรรมสิทธิ์แบบโฉนด
- โฉนดที่ดิน
ติดต่อเราวันนี้เพื่อสอบถามข้อมูลเพิ่มเติม!
วิลล่าสวน 2 ห้องนอน วิลล่าในเกาะสมุย อสังหาริมทรัพย์เพื่อขายในเกาะสมุย
จุดเด่น
ภาพ
ราคา
| € | 191,000 | |
| ฿ | 7,200,000 | |
| US$ | 225,000 | |
| £ | 166,000 | |
| CN¥ | 1,531,000 | |
| RUB | 16,760,000 | |
| ₪ | 670,000 | |
| AU$ | 313,000 |
แผนชั้น
ติดต่อ
Doctor Property Team

Cherry Songkhasupha
Contact us by phone +66 6 1210 0497
or mail info@doctor-property.co.th
ตำแหน่ง/สถานที่
เกาะสมุย























