Beschreibung
In der ruhigen Enklave von Ban Tai auf Koh Samui gelegen, bietet dieses exklusive Boutique-Projekt die seltene Gelegenheit, ein Stück Paradies zu besitzen. Das Projekt umfasst neun exklusive, freistehende Studio-Villen, die alle mit einem durchdachten, offenen Grundriss gestaltet sind, der modernen Komfort mit tropischer Eleganz verbindet. Inmitten einer friedlichen Wohngegend bieten diese Villen die perfekte Balance zwischen Privatsphäre und Komfort, denn unberührte Strände, lokale Geschäfte und Restaurants sind nur wenige Schritte entfernt.
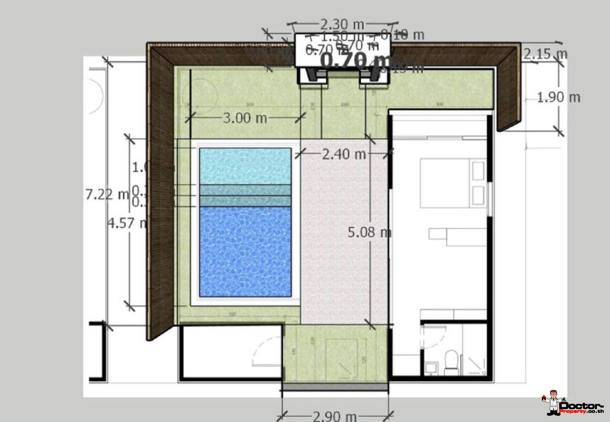
Jede Villa ist ein privates Refugium mit eigenem Swimmingpool und angelegtem Garten, sodass die Bewohner einen ruhigen Rückzugsort im Herzen der Insel genießen können. Die Innenräume sind modern gestaltet und verfügen über eine voll ausgestattete Küche und ein elegantes Badezimmer, die Funktionalität und Stil vereinen. Klimaanlage und Flachbildfernseher sind inklusive, sodass Sie sich sofort wie zu Hause fühlen können. Die Wohnräume gehen fließend in den Außenbereich über, wo stilvolle Möbel das Ambiente sowohl innen als auch außen unterstreichen. Jede Villa ist eine private Oase mit eigenem Swimmingpool und angelegtem Garten, die den Bewohnern einen erholsamen Aufenthalt im Herzen der Insel ermöglicht.
Hauptmerkmale:
- 1 Schlafzimmer, 1 Badezimmer
- Privater Swimmingpool
- Ökologisch gestaltete Schlafzimmer mit natürlichen Elementen
- Bauplan (fertig innerhalb von 5 Monaten)
- 30 Jahre Erbpacht
- Voll möbliert inklusive Klimaanlage
- Versorgung: Strom und Wasser (öffentliche Versorgung)
Die Villen werden im Rahmen eines 30-jährigen Erbpachtvertrags verkauft.
- Monatliche Erbpacht: 2.300 THB
- Erhöhung der Erbpacht: 5 % alle 5 Jahre
- Die Erbpacht ist zusätzlich zum Kaufpreis der Villa zu entrichten.
Hinweis: Die Bauzeit beträgt 5 Monate. Die gezeigten Bilder stammen aus dem Musterhaus der Villa.
Kontaktieren Sie uns noch heute für weitere Informationen!
Gartenvilla mit einem Schlafzimmer, Immobilie in Koh Samui, Immobilie zum Verkauf in Thailand
Eigenschaften
Bilder
Preis
| € | 84.000 | |
| ฿ | 3.200.000 | |
| $ | 99.000 | |
| £ | 73.000 | |
| CN¥ | 673.000 | |
| RUB | 7.488.000 | |
| ₪ | 296.000 | |
| AU$ | 138.000 |
Grundriss
Kontakt
Doctor Property Team

Cherry Songkhasupha
Contact us by phone +66 6 1210 0497
or mail info@doctor-property.co.th
Ort
Ban Tai















































